MODERN DUPLEX APARTMENT IN PUENTE ROMANO
- Property type: Apartments
- Offer type: For Sale
- Areas: Marbella Golden Mile - Puente Romano
- Condition: Authors design
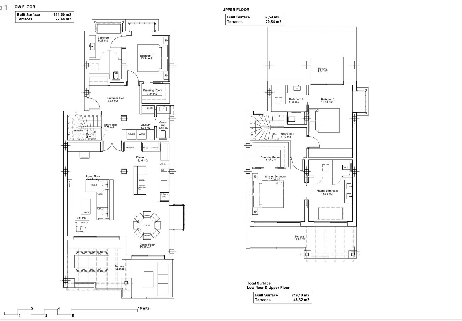
- Built: 219 m²
- Bedrooms: 3
- Bathrooms: 4
- Terrace size: 48 m²
Details
Experience the pinnacle of luxury at Gazania 31, an exquisite 3-bedroom property located within the prestigious 5-star Puente Romano resort on Marbella’s Golden Mile. Surrounded by the lush tropical beauty of Puente Romano’s Andalusian Garden, this exceptional residence is just steps away from pristine beaches and the serene Mediterranean Sea.
Gazania 31 boasts three en suite bedrooms and a spacious main living area, totaling 218 m² of built space with two covered terraces. Upon entering the ground floor, you’ll find an open-plan living area bathed in natural light, seamlessly connecting to the kitchen and dining space. The kitchen features a stunning blend of contemporary design and natural materials, equipped with top-tier Gaggenau and Miele appliances.
Ascend to the first floor to discover two additional spacious bedrooms, including the master suite. The master bedroom offers ample storage with large wardrobes and an en suite bathroom featuring a walk-in shower and a luxurious bathtub with views of the Mediterranean. The second well-appointed bedroom on this floor also includes an en suite bathroom and overlooks the beautiful gardens of Puente Romano.
The third bedroom is located on the ground floor, providing privacy from the main living area and serene views of the retreat-style gardens. Decorated in a neutral palette with luxurious fabrics, this bedroom is a cozy, tranquil haven with its own en suite bathroom, featuring a walk-in shower and high-end fixtures and fittings for a practical yet sophisticated space.
Indulge in the ultimate blend of elegance and comfort at Gazania 31, where every detail is crafted to create a sanctuary of luxury.